保護環境,麥克加油站油氣回收解決方案
簡介
實時監測油氣回收系統各項指標是否正常,部分加油站開始試點運行在線監測系統。按照地標要求進行校準測試,可以保障在線監測系統的準確性和穩定性。
背 景
油氣揮發是諸多加油站潛在不安全要素之一,在卸油、加油過程中,除存在油氣蒸發損耗,油汽毒性危害人身安全和造成大氣污染也是當今最受關切的問題。
根據2013年CARB油氣回收認證程序CP201規定,年銷售汽油油品在60萬加侖以上的加油站都需要配備在線監測系統。

油氣安全在線監測系統
功能介紹在線監測系統是在油氣回收系統的基礎上,對油氣回收運行參數進行在線監測的一系列設備的組合。系統功能主要包括故障監測、數據傳輸、超標報警和強制停機等功能。據DB11 208的要求,在線監測系統需要能夠實時監測加油油氣回收過程中的氣液比、油氣回收系統的密閉性和管線液阻等參數,并能記錄、存儲、處理和傳輸監測數據。
油氣回收的關鍵在于維持適當的氣液比(我國規定為1~1.2),氣液比主要通過機械式或電子式氣液比例調節閥的開度來調節。在加油站運營過程中,由于真空泵頻繁開啟,氣流對調節閥有一定的沖擊,而氣液比又對閥的開度較為敏感,常會出現漂移現象,因此有必要通過在線監控系統監測氣液比的當前值。除氣液比外,密閉性和管線液阻也是油氣回收系統的重要參數,需要實時監測。
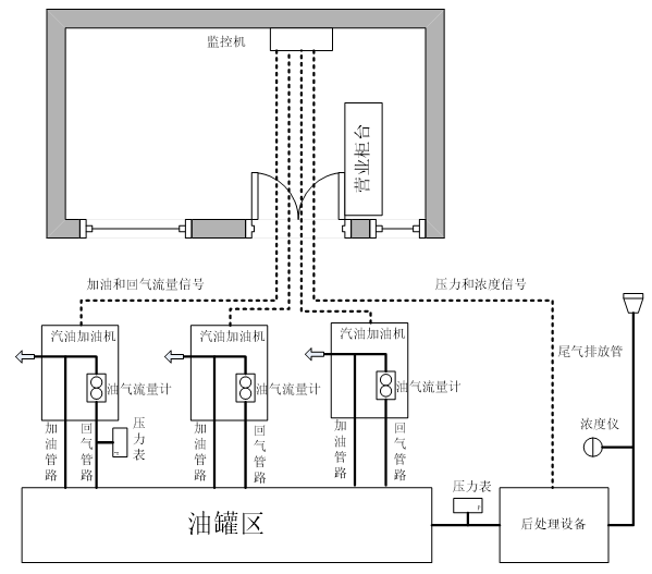
系統結構
在線監測系統的主要組成結構:
1. 安裝在加油站各管路上的現場儀表(包括壓力傳感器、氣體流量計、濃度檢測儀等);
2. 數據采集器(用于采集加油脈沖、油氣流量脈沖、壓力信號、濃度信號等);
3. 加油站室內的監控機(監控機運行在線檢測軟件)。

(在線監測系統設備安裝示意圖)
在線監測系統的氣體流量計安裝于加油機內氣路上,用于監測每次加油操作的回氣體積。壓力傳感器安裝于與地下儲油罐直接連通的氣路上,如加油機底部回氣總管處或后處理裝置進氣口處。數據采集器位于加油機內,用于采集加油脈沖、回氣脈沖和壓力信號,并通過通信線纜將數據傳入監控機進行處理。
壓力變送器在油氣回收系統上的應用
加油站油氣回收系統的關鍵在于油氣的密閉回收,管道壓力是一項重點監測內容,通過系統壓力及壓力的變化趨勢來判斷當前油氣回收系統是否出現泄露、壓力真空閥是否堵塞、后處理設備是否正常工作。壓力變送器在油氣回收系統上的應用如圖所示:

(客戶提供現場應用圖一)

(客戶提供現場應用圖二)

(客戶提供現場應用圖三)
產品特點

MDM3051S型智能壓力變送器
-3.5~3.5KPa;
4-20mADC帶HART協議;
本安防爆,精度0.075%;
穩定可靠,長期漂移性能最優0.1%/年;
量程100:1的可調節量程比。
















